Entwicklungsperspektiven

Weetzen Zuckerfabrik

 

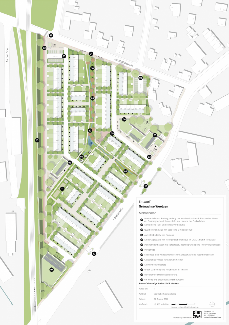
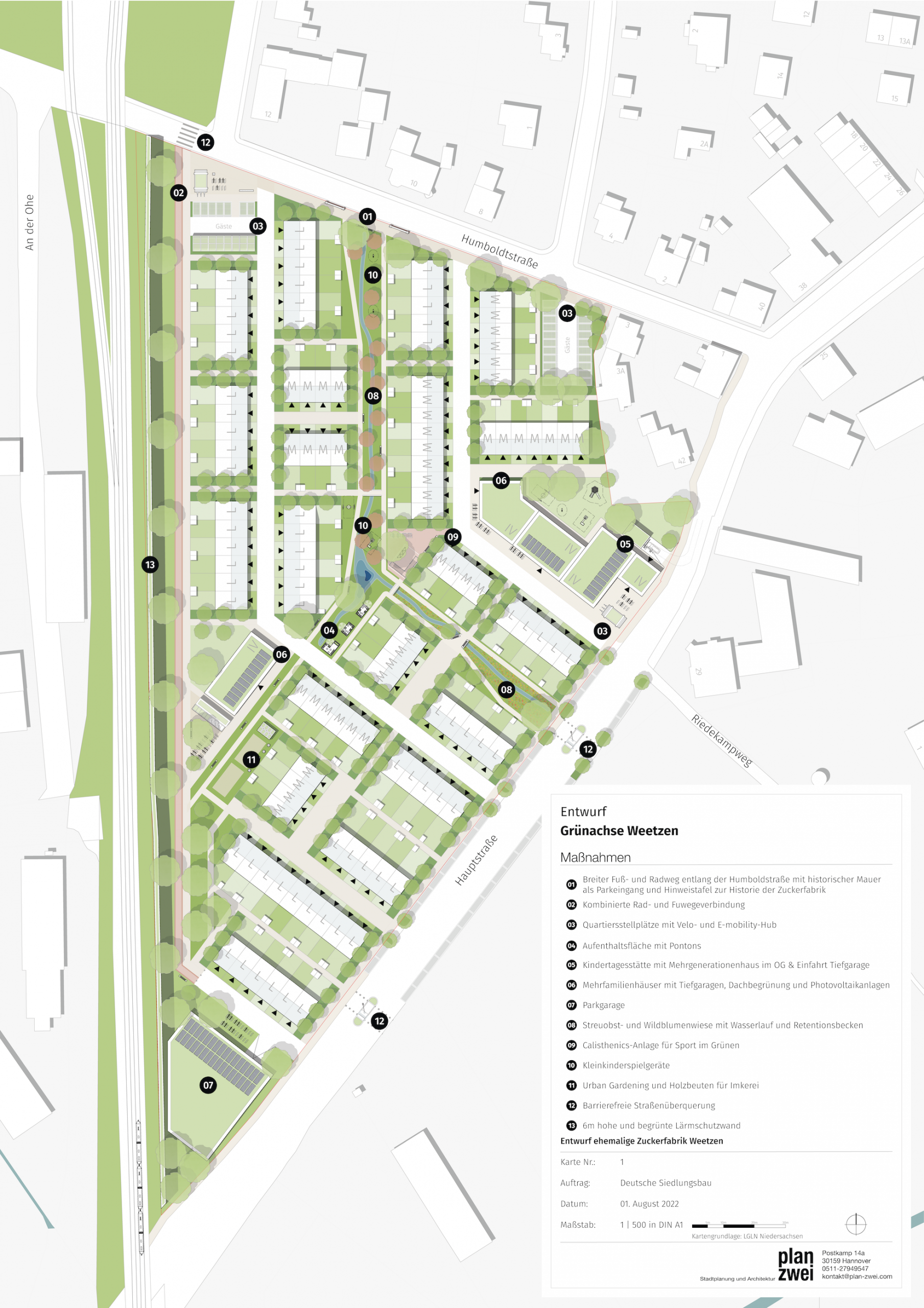
Die Zuckerfabrik in Weetzen, am südlichen Siedlungsrand des Ortes Weetzen in der Gemeinde Ronnenberg (Region Hannover) gelegen, steht seit 2014 leer. Seit 2021 ist die Wohnpark Weetzen GmbH neue Eigentümerin der Fläche und plant den Standort nun als Wohngebiet mit hoher Qualität zu entwickeln. Das ehemalige Industriegelände soll ein Wohnpark mit naturnahen Elementen und guter Anbindung an die Landschaft werden, das als emissionsarme Klimaschutzsiedlung eine zukunftsfähige Erweiterung des Wohnangebotes in Weetzen bietet.

Vor diesem Hintergrund hat plan zwei verschiedene Entwicklungsperspektiven für das Gelände entworfen. Der ausgewählte Entwurf „Grünachse“ setzt sich aus verschiedenen Nachbarschaftsclustern zusammen. Als Grundform dominiert das Reihenhaus in zwei unterschiedlichen Größen. Ergänzend dazu sind Mehrfamilienhäuser und eine Kita geplant. Die Qualität des Wohnstandorts ist maßgeblich von drei Rahmenbedingungen beeinflusst: In erster Linie der direkten Anbindung des neuen Wohnstandorts an die S-Bahn, zweitens der Verbindung der Wohnlage mit den qualitätvollen umgebenden Landschaftsräumen und drittens der räumlichen und sozialen Integration des Wohngebiets in den Siedlungsbestand.

Die im Quartier angebotenen öffentlichen Räume greifen die wichtigen Wegebeziehungen in Weetzen auf: eine Schnellverbindung im Fahrradnetz entlang der Schienen im Quartier stellt eine direkte Fahrradanbindung an die S-Bahn her. Die zweite Verbindung erschließt zentral das neue Wohngebiet entlang eines grünen „Ypsilons“ – der zentralen Grünachse, die als grünes Band eine neue Verbindungsachse zwischen Naturraum und Bahnhof etabliert. Die gute Anbindung des neuen Bauabschnitts an den ÖPNV und viel Raum für den nicht motorisierten Verkehr unterstützen eine hohe Wohnumfeldqualität.

 

Raum: Gelände der ehemaligen Zuckerfabrik in Weetzen Zeitraum: 02/2022–07/2022 Auftraggeberin: Deutsche Siedlungsbau im Auftrag der Wohnpark Weetzen GmbH Leistung: Erarbeitung von Entwicklungsperspektiven für das Gelände der ehemaligen Zuckerfabrik

Themenfeld
Stadtentwicklung